DucoBox Energy Comfort D325
This smart and silent ventilation box, with its adjustable capacity of up to 325 m³/h is the ideal solution for apartments and houses due to its compact size.
The left/right exchange is 100% software-driven thanks to the patented principle of double by-pass.
The dynamic air distribution filters, together with the smart demand control based on CO2 and humidity, ensure for exceptional efficiency within this compact unit.
Compact & light
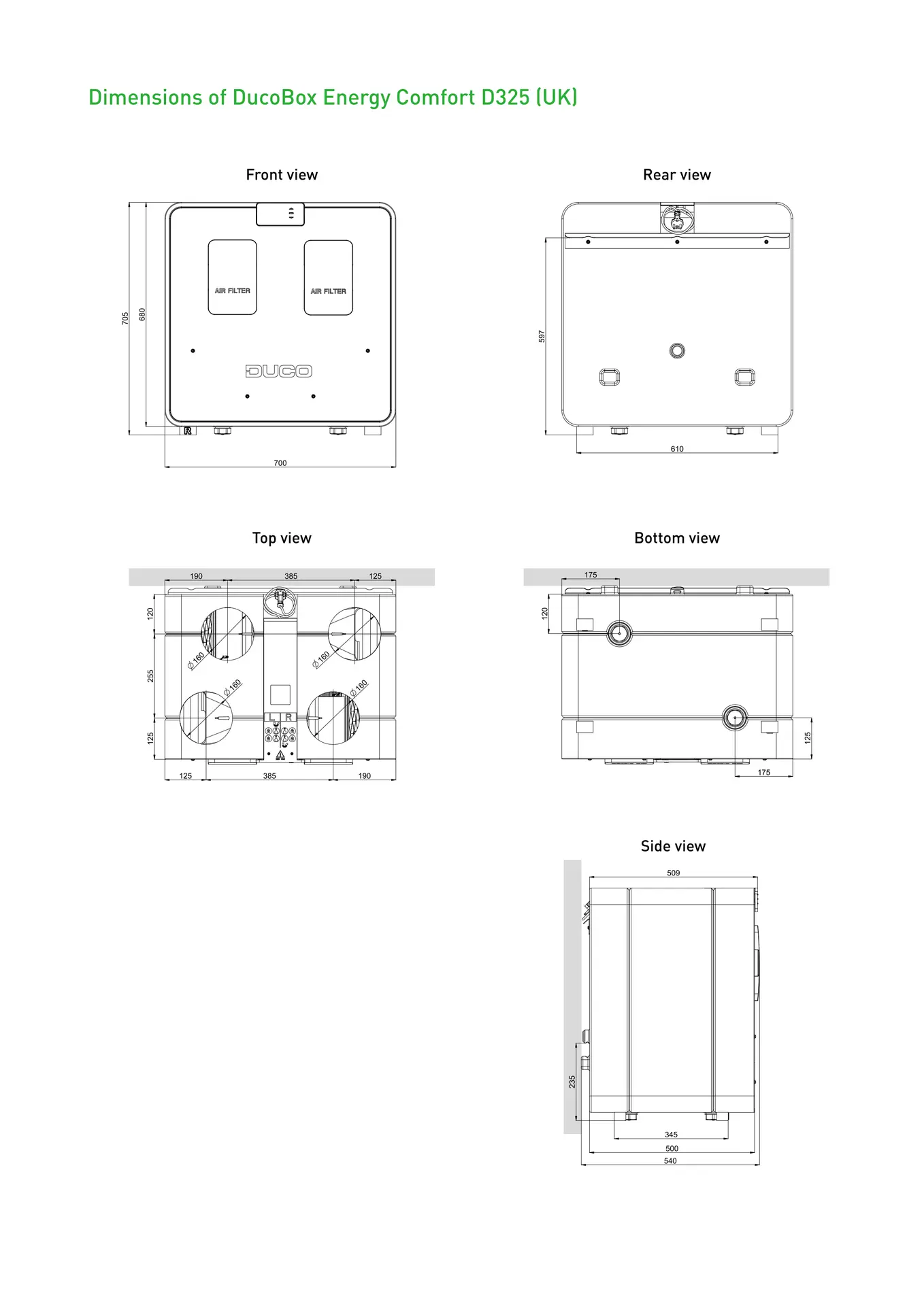
This lightweight unit of 21 kg can easily be installed by 1 person. With its compact dimensions, the DucoBox Energy Comfort is ideal for a small work space!
Left/right exchangeable
This unit is very user-friendly because physical interventions are not necessary. The left/right exchange is carried out 100% by software thanks to a patented principle of double by-pass.
High Efficiency
The use of dynamic air filters guarantee a very high efficiency rate. In combination with the possibility to include intelligent on-demand-controlling of the DucoBox Energy Comfort (based on CO2- and/or humidity-sensors), this results in a very energy efficient performance.
Compact external 2-zone control
With external 2-zone control, the house is divided into a day and night zone.
This zonal control is based on CO2 and humidity. It only provides ventilation where and when needed, in the right amount.
Zonal ventilation ensures maximum energy savings and increases acoustic and thermal comfort.
Discover the 4 benefits of the multi-zone valve:
1) Compact installation
The multi-zone valves are installed in the supply ducts (D125 or D160) and require only 78 mm clearance. They can be used at any point in the duct system. The installer can make his own choice according to ease of installation, accessibility...
2) Energy savings
When using zonal ventilation, we don't ventilate a whole home but only the rooms where people actually are. This means our systems need to work less hard, which results in substantial lower energy consumption (40%) from the ventilation unit as well as the heating system.
3) Quieter operation
Reduced motor rotation which ensures a significantly quieter operation (30%).
4) Enhanced thermal comfort
Thanks to the unique principle of comfort temperature setting, you can define the temperature for each zone yourself, for example 21.5° for the day zone and 18° for the night zone. This provides significantly increased thermal comfort.




Instructional videos - DucoBox Energy Comfort (Plus)
- Installing the DucoBox Energy Comfort (Plus)
- Installing a Pre-Heater
- INSTALLING A HUMIDITY SENSOR
- Installing MULTI-ZONE VALVES
Control components and Accessories
- Installation of remote controls, room sensors & LED guide
- Installing the RF / 230 VAC switch sensor
- Installing the Duco Connectivity Board
Service & Maintenance
- Bypass maintenance
- Pressure sensor maintenance
- Temperature sensors maintenance
- Circuit board maintenance
- Pre-heater maintenance
- Multi-zone valve maintenance
- Filter cleaning & replacement
- Heat exchange maintenance
- Condensate drain maintenance
- Fan Maintenance
- How to read error codes and error messages
